︎
attila mórocz
︎︎︎
︎︎︎
Planung und Bau
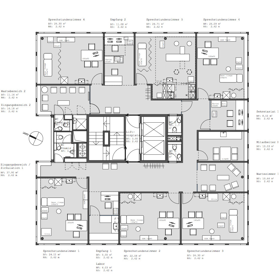
Praxis
in Rapperswil
Bau der grossen Arztpraxis Rheuma-im-Quadrit.
Leistungen:
Gestaltung
Planung
Ausführung
Email
Kontakt
Über mich
Running on Cargo