︎
attila mórocz
︎︎︎
︎︎︎
Pavillon in
Rio de Janeiro
für die Video-Kunst
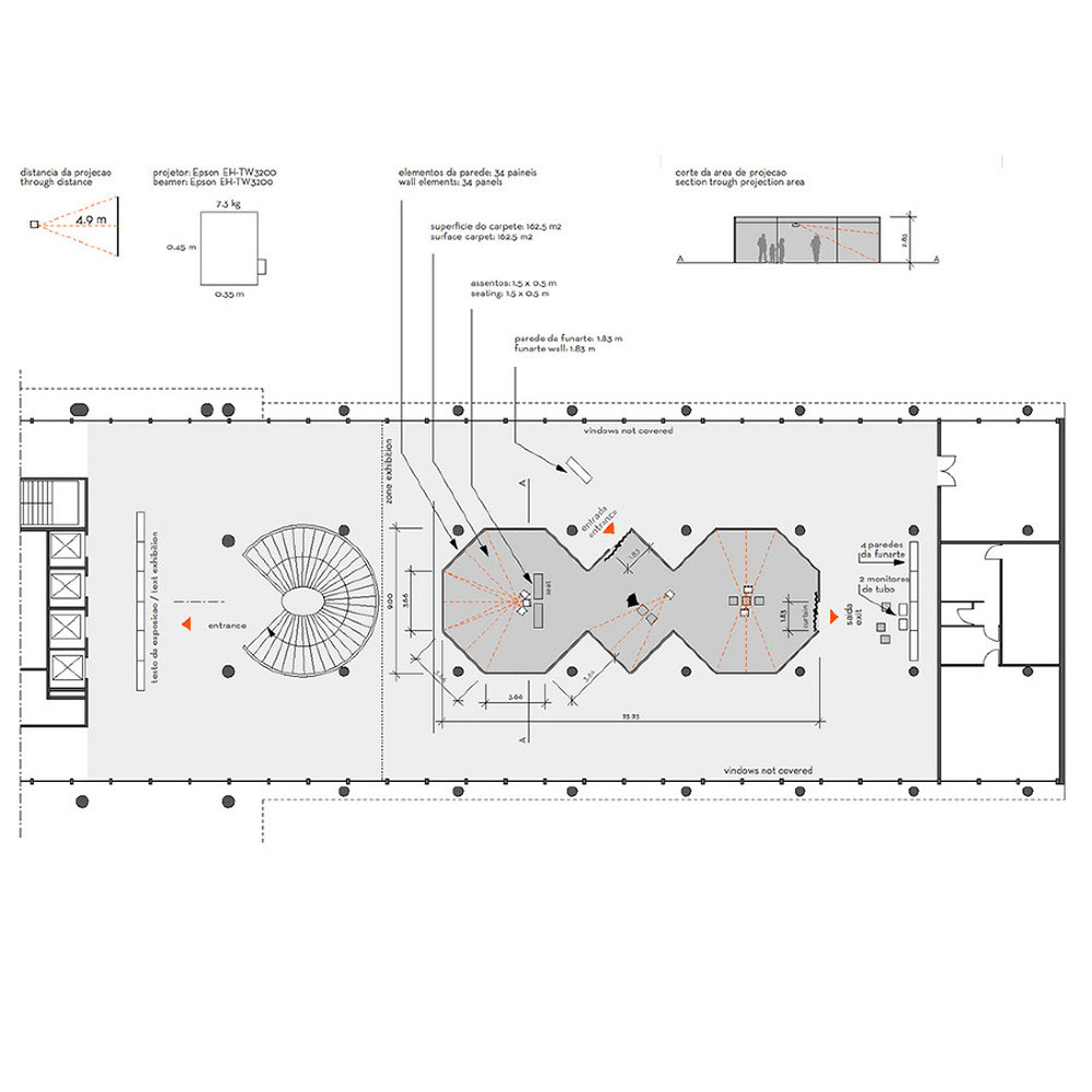
Was für ein Traum: im Palast, von Oscar Niemeyer und Le Corbusier geplant, ein Kunstpavillon einbauen zu können. Eine Baustelle am anderen Ende der Welt.
Email
Kontakt
Über mich
Running on Cargo